A rendered visual of our residential mini bar design
Summer Stories:
Interiors for Living and Leisure
by Pamela Aldaba
As the summer sun begins to spill its golden light and warmth, the scent of the ocean breeze and freshly squeezed lemonade bring the tide of planning a much-deserved vacation. Families start preparing for road trips, booking getaways, or opting for the simplicity of a staycation. With school breaks and routines shifting, it begins a season of unwinding—whether by exploring distant destinations or embracing the comfort of familiar spaces where slathering on sunscreen is optional.

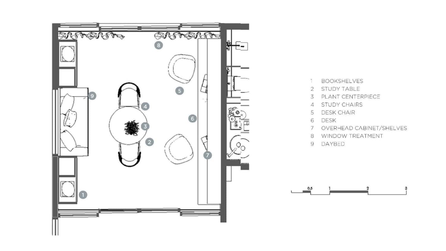
Summer often associates itself with the outdoors and being engulfed in the summer heat—forgetting that homes can transform into a place of respite. Though this space is a study room, it exemplifies how thoughtful designs can go beyond their intended functionality. Its primary purpose is for focused work or study, its layout and inviting furniture lends itself to be an area for hosting get-togethers or lively game nights.

A light, airy palette and wall-to-wall mirror balance the weight of substantial built-in cabinetry. Window treatments also add a finishing touch, adding a sense of privacy without compromising the room's bright and inviting atmosphere.


Main areas that seamlessly blend into outdoor spaces create environments ideal for leisure. These are achieved using similar materials and motifs to foster a cohesive and unified design. These key areas feel more expansive and connected by bridging these spaces through repetitive elements.



Apart from providing ample seating for lounging, a bar in shared spaces adds liveliness, encourages social interaction, and serves as a focal point ideal for entertaining.

Incorporating dynamic ceiling designs and eye-catching fixtures enhances the space's allure.

Thoughtful details elevate not only the aesthetic but also the experience of being in the space, transforming it into more than a shelter—a stage for summer stories to unfold.
People often overlook the potential of homes as an alternative oasis. However, developing spaces into environments for relaxation is more attainable than it seems. While hesitation may arise when exploring these possibilities, simple thoughtful choices like open layouts and repetition of finishes are among the many ways to achieve a home away from home. Crafting spaces with this in mind sets the stage for the season’s most cherished moments. The finest summer stories aren't necessarily from distant places. Sometimes, the best ones unfold at home.
Looking to elevate your space? Our team is ready to collaborate and turn your ideas into reality—let’s create something remarkable together.